Bio-diversifier
pdf-cmjn-illustrations-ajap-acme-paul-valery-v5

Cité Mixte Régionale Paul Valéry

Paris 12e (75)
Un paysage support d'usages scolaires et publics en milieu urbain dense
1.0

Campus Sciences Po Paris

Paris 07e (75)
Réhabilitation d'un patrimoine historique
plantes_29
image2

Groupe Scolaire Henri Dunant

Rouen (76)
Cours d'écoles à l'orée des bois
a3_carnet_page_02_light

Groupe Scolaire du Bois Bohy

Evreux (27)
Réhabilitation en lisière forestière
cachan-estp-com-231206

Campus ESTP Cachan

Cachan (94)
Apprentissage, Rencontre, Paysage
64_pegasus_oral_presentation_page_04

Musée Mémorial Pegasus

Ranville (14)
Jardin muséographique
rms_cour_vue2ter

Complexe Sportif Urbain de Courcelles

Reims (51)
Un parc actif et pluriel
c.-cahier-a3-plateau-sportif_vue

Plaine des sports, Gymnase et Maison de quartier

Longjumeau (91)
Un jardin sportif urbain
coupe-ajap

Gymnase du village des médias

Dugny (93)
Equipement culturel et jardin d'agrément
mont_cosec_pro_pays_240614-plan-masse-a0

COSEC Pablo Picasso

Montesson (78)
Un parvis-jardin sportif et évènementiel
pdf-cmjn-illustrations-ajap-acme-stains-v6

Lot 28S _ Zac des Tartres

Stains (93)
Milieux, écotones, habitats
plantes_29
plan-masse_light

Collège Jean Jaurès

Montfermeil (93)
Extension - Réhabilitation d'un patrimoine moderne
athis-mons-com-231220

Canopée urbaine

Athis-mons (91)
Paysage des échanges
auber-landy-com-231220

Port Landy

Aubervilliers (93)
Un coeur d'ilot accessible au sein d'une topographie existante contrainte
issy-com-231220

Projet Sakura (immeuble Paul Bert)

Issy-les-Moulineaux (92)
Jardin de poche pour programme mixte
cop_projet-paysager-a3_pers-light

École Primaire et place de village

Saint-Martin-Sur-Ouanne (89)
Un parvis-jardin entre la mairie, la rue et l’école.
Plantes en format carré_Illus
galia_pantin_meteore_phase4-2-hd-01

Météore 4 chemins

Pantin (93)
Inventer la Métropole du Grand Paris 3 : Lauréat
carte-grande-echelle1

ZAC Coupvray

Coupvray (77)
Au sein d'un ilot urbain dense, déployer un paysage support d'usages scolaires et publics
plantes_29
20412-plan-masse_1_500-01-01

Les Messageries

Paris 12e (75)
Transitions paysagères
plan-coupe

Le jardin du dernier acte

Chaumont-Sur-Loire (37)
Jardins des siècles à venir
qsdqsdqsd

Zzzz

Paris (75)
Aménagement éphémère sur les bords de Seine
plan-masse_light

Groupe Scolaire Intercommunal Clichy / Saint-Ouen

Clichy-La-Garenne (93)
Un GS addosé à un parc urbain
plantes_29
plume-com-horinzontal-231109

Impasse Passoir

Clichy (92)
Jardins, sous-bois et vie quotidienne
acme_jour_aps_221102-plan-masse-01

Boulevard Jourdan

Paris 14e (75)
Jardin belvédère et terrasse nourricière
03-plan-paysager

Gymnase Franconville

Franconville (95)
Gymnase et espaces publics paysagers
d1_panneaux-a0_vue2

Rénovation de la salle Bouteiller

Chantilly (95)
Placette et venelle publiques
vue-cours_1_light

Groupe Scolaire ZAC Mantes-Université

Mantes-La-Ville (78)
Cours oasis au sein d'une topographie reconstituée
brest_plan-masse_pays_a1_200e_light2

Îlot Pradou_ZAC Fontaine Margot

Brest (29)
Logements et prairies habitées
plan-masse_light

Lot C2 _ Zac de l'Horloge

Romainville (93)
Jardin résidentiel
Habiter
pdf-cmjn-illustrations-ajap-acme-stains-v6

Lot 28S _ Zac des Tartres

Stains (93)
Milieux, écotones, habitats
grande-echelle-01

Terrain Prevot

Mont-joly, Guyane (97)
Habiter la forêt
athis-mons-com-231220

Canopée urbaine

Athis-mons (91)
Paysage des échanges
auber-landy-com-231220

Port Landy

Aubervilliers (93)
Un coeur d'ilot accessible au sein d'une topographie existante contrainte
issy-com-231220

Projet Sakura (immeuble Paul Bert)

Issy-les-Moulineaux (92)
Jardin de poche pour programme mixte
carte-grande-echelle1

ZAC Coupvray

Coupvray (77)
Au sein d'un ilot urbain dense, déployer un paysage support d'usages scolaires et publics
plantes_29
20412-plan-masse_1_500-01-01

Les Messageries

Paris 12e (75)
Transitions paysagères
linkcity-x-acme-note-chemin-de-la-montagne-5

Chemin de la montagne

La-Queue-en-Brie (94)
Le vivant en préalable
plantes_29
plume-com-horinzontal-231109

Impasse Passoir

Clichy (92)
Jardins, sous-bois et vie quotidienne
acme_jour_aps_221102-plan-masse-01

Boulevard Jourdan

Paris 14e (75)
Jardin belvédère et terrasse nourricière
brest_plan-masse_pays_a1_200e_light2

Îlot Pradou_ZAC Fontaine Margot

Brest (29)
Logements et prairies habitées
plan-masse_light

Lot C2 _ Zac de l'Horloge

Romainville (93)
Jardin résidentiel
Partager
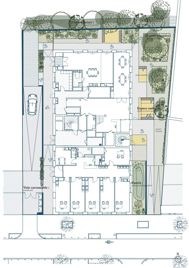
pdf-cmjn-illustrations-ajap-acme-paul-valery-v5

Cité Mixte Régionale Paul Valéry

Paris 12e (75)
Un paysage support d'usages scolaires et publics en milieu urbain dense
cachan-estp-com-231206

Campus ESTP Cachan

Cachan (94)
Apprentissage, Rencontre, Paysage
rms_cour_vue2ter

Complexe Sportif Urbain de Courcelles

Reims (51)
Un parc actif et pluriel
c.-cahier-a3-plateau-sportif_vue

Plaine des sports, Gymnase et Maison de quartier

Longjumeau (91)
Un jardin sportif urbain
coupe-ajap

Gymnase du village des médias

Dugny (93)
Equipement culturel et jardin d'agrément
pdf-cmjn-illustrations-ajap-acme-rauville-v5

Valoriser le patrimoine d'un enclos-village

Rauville-La-Place (50)
Acupuncture paysagère dans un village rural
map-reprise

La renaturation de la Brague

Biot (06)
Reméandrer le lit d’un fleuve torrentiel pour prévenir les risques d’inondation
grande-echelle-01

Terrain Prevot

Mont-joly, Guyane (97)
Habiter la forêt
qsqsqsqs

Z.A. des Eaux Blanches

Sète (34)
Etude paysagère pour l’entrée de ville de Sète
cop_projet-paysager-a3_pers-light

École Primaire et place de village

Saint-Martin-Sur-Ouanne (89)
Un parvis-jardin entre la mairie, la rue et l’école.
linkcity-x-acme-note-chemin-de-la-montagne-5

Chemin de la montagne

La-Queue-en-Brie (94)
Le vivant en préalable
qsdqsdqsd

Zzzz

Paris (75)
Aménagement éphémère sur les bords de Seine
plantes_29
plume-com-horinzontal-231109

Impasse Passoir

Clichy (92)
Jardins, sous-bois et vie quotidienne
d1_panneaux-a0_vue2

Rénovation de la salle Bouteiller

Chantilly (95)
Placette et venelle publiques

Esquisse global des espaces publics des Tours Nuages

Nanterre (92)
Remembrement urbain et paysager

Dans un ensemble de 500 logements, les tours Nuages font l’objet d’une étude détaillée pour définir leur diversification fonctionnelle et introduire une plus grande mixité sociale et économique dans le quartier Parc Sud.

Ce quartier de 9 à 10 hectares avec vue sur La Défense est d’une taille inégalée. Connecté au parc André Malraux, ses espaces publics sont fortement minéralisés et leurs accès sont invisibles. En tant que paysagistes, nous proposons de rendre ces espaces moins imperméables, d’homogénéiser le traitement des sols et de prévoir de nouveaux usages pour que ce quartier puisse interagir avec le parc et redevienne un véritable poumon vert, un espace public majeur pour la ville de Nanterre.

Différentes stratégies seront proposées à la ville et à la SPLNA pour étudier la faisabilité de nos propositions.

Maîtrise d’ouvrage :

SPLNA

Maître d’œuvre :

LAMT Architecture, Acmé paysage

Réalisation des phases :

Etude paysagère

Date :

2024 - En cours

Montant de travaux paysage et VRD :

nc

acm_paysage-ecosysteme_plan-de-travail-2-cadrage-zoom-1-123

Les milieux

capture-decran-2024-08-19-112459