Bio-diversifier
pdf-cmjn-illustrations-ajap-acme-paul-valery-v5

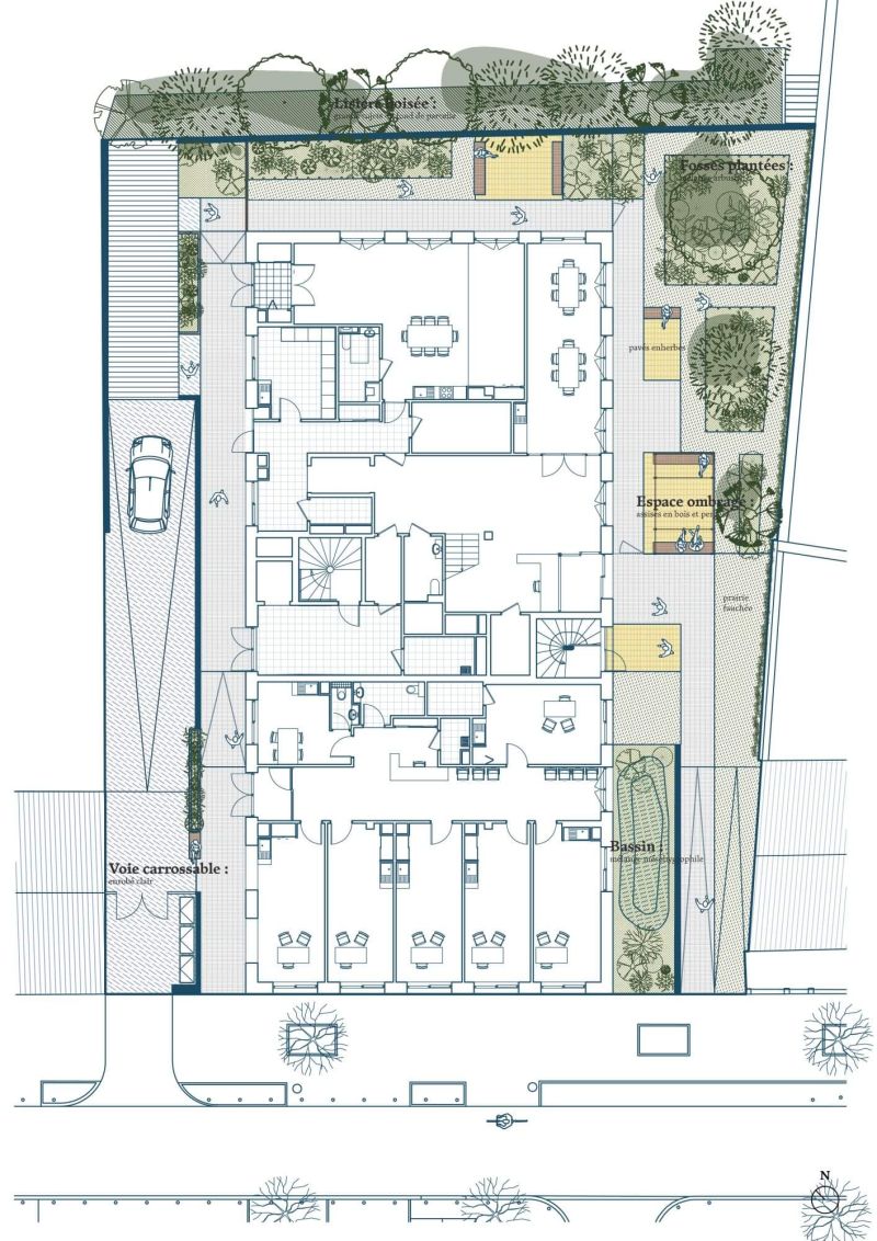
Cité Mixte Régionale Paul Valéry

Paris 12e (75)
Un paysage support d'usages scolaires et publics en milieu urbain dense
1.0

Campus Sciences Po Paris

Paris 07e (75)
Réhabilitation d'un patrimoine historique
plantes_29
image2

Groupe Scolaire Henri Dunant

Rouen (76)
Cours d'écoles à l'orée des bois
cachan-estp-com-231206

Campus ESTP Cachan

Cachan (94)
Apprentissage, Rencontre, Paysage
64_pegasus_oral_presentation_page_04

Musée Mémorial Pegasus

Ranville (14)
Jardin muséographique
rms_cour_vue2ter

Complexe Sportif Urbain de Courcelles

Reims (51)
Un parc actif et pluriel
c.-cahier-a3-plateau-sportif_vue

Plaine des sports, Gymnase et Maison de quartier

Longjumeau (91)
Un jardin sportif urbain
ajap-plan

Gymnase du village des médias

Dugny (93)
Equipement culturel et jardin d'agrément
mont_cosec_pro_pays_240614-plan-masse-a0

COSEC Pablo Picasso

Montesson (78)
Un parvis-jardin sportif et évènementiel
pdf-cmjn-illustrations-ajap-acme-stains-v6

Lot 28S _ Zac des Tartres

Stains (93)
Milieux, écotones, habitats
plantes_29
plan-masse_light

Collège Jean Jaurès

Montfermeil (93)
Extension - Réhabilitation d'un patrimoine moderne
athis-mons-com-231220

Canopée urbaine

Athis-mons (91)
Paysage des échanges
auber-landy-com-231220

Port Landy

Aubervilliers (93)
Un coeur d'ilot accessible au sein d'une topographie existante contrainte
issy-com-231220

Projet Sakura (immeuble Paul Bert)

Issy-les-Moulineaux (92)
Jardin de poche pour programme mixte
a3_carnet_axo_light

Groupe Scolaire du Bois Bohy

Evreux (27)
Réhabilitation en lisière forestière
cop_projet-paysager-a3_pers-light

École Primaire et place de village

Saint-Martin-Sur-Ouanne (89)
Un parvis-jardin entre la mairie, la rue et l’école.
Plantes en format carré_Illus
galia_pantin_meteore_phase4-2-hd-01

Météore 4 chemins

Pantin (93)
Inventer la Métropole du Grand Paris 3 : Lauréat
carte-grande-echelle1

ZAC Coupvray

Coupvray (77)
Au sein d'un ilot urbain dense, déployer un paysage support d'usages scolaires et publics
plantes_29
20412-plan-masse_1_500-01-01

Les Messageries

Paris 12e (75)
Transitions paysagères
qsdqsdqsd

Zzzz

Paris (75)
Aménagement éphémère sur les bords de Seine
plan-masse_light

Groupe Scolaire Intercommunal Clichy / Saint-Ouen

Clichy-La-Garenne (93)
Un GS addosé à un parc urbain
plantes_29
plume-com-horinzontal-231109

Impasse Passoir

Clichy (92)
Jardins, sous-bois et vie quotidienne
acme_jour_aps_221102-plan-masse-01

Boulevard Jourdan

Paris 14e (75)
Jardin belvédère et terrasse nourricière
03-plan-paysager

Gymnase Franconville

Franconville (95)
Gymnase et espaces publics paysagers
d1_panneaux-a0_vue2

Rénovation de la salle Bouteiller

Chantilly (95)
Placette et venelle publiques
vue-cours_1_light

Groupe Scolaire ZAC Mantes-Université

Mantes-La-Ville (78)
Cours oasis au sein d'une topographie reconstituée
brest_plan-masse_pays_a1_200e_light2

Îlot Pradou_ZAC Fontaine Margot

Brest (29)
Logements et prairies habitées
plan-masse_light

Lot C2 _ Zac de l'Horloge

Romainville (93)
Jardin résidentiel
Equiper
pdf-cmjn-illustrations-ajap-acme-paul-valery-v5

Cité Mixte Régionale Paul Valéry

Paris 12e (75)
Un paysage support d'usages scolaires et publics en milieu urbain dense
parcours

Le Fort des Saumonards

Saint-Georges-d'Oléron (17)
Destination culturelle et milieux naturels
1.0

Campus Sciences Po Paris

Paris 07e (75)
Réhabilitation d'un patrimoine historique
plantes_29
image2

Groupe Scolaire Henri Dunant

Rouen (76)
Cours d'écoles à l'orée des bois
cachan-estp-com-231206

Campus ESTP Cachan

Cachan (94)
Apprentissage, Rencontre, Paysage
64_pegasus_oral_presentation_page_04

Musée Mémorial Pegasus

Ranville (14)
Jardin muséographique
rms_cour_vue2ter

Complexe Sportif Urbain de Courcelles

Reims (51)
Un parc actif et pluriel
c.-cahier-a3-plateau-sportif_vue

Plaine des sports, Gymnase et Maison de quartier

Longjumeau (91)
Un jardin sportif urbain
ajap-plan

Gymnase du village des médias

Dugny (93)
Equipement culturel et jardin d'agrément
mont_cosec_pro_pays_240614-plan-masse-a0

COSEC Pablo Picasso

Montesson (78)
Un parvis-jardin sportif et évènementiel
plantes_29
plan-masse_light

Collège Jean Jaurès

Montfermeil (93)
Extension - Réhabilitation d'un patrimoine moderne
a3_carnet_axo_light

Groupe Scolaire du Bois Bohy

Evreux (27)
Réhabilitation en lisière forestière
cop_projet-paysager-a3_pers-light

École Primaire et place de village

Saint-Martin-Sur-Ouanne (89)
Un parvis-jardin entre la mairie, la rue et l’école.
Plantes en format carré_Illus
galia_pantin_meteore_phase4-2-hd-01

Météore 4 chemins

Pantin (93)
Inventer la Métropole du Grand Paris 3 : Lauréat
07.3_esquisse-d-intention_panneau-a0_vue

Site Gallo-Romain de Sanxay

Sanxay (86)
Séquence d'accueil et micro-interventions paysagères
plan-masse_light

Groupe Scolaire Intercommunal Clichy / Saint-Ouen

Clichy-La-Garenne (93)
Un GS addosé à un parc urbain
03-plan-paysager

Gymnase Franconville

Franconville (95)
Gymnase et espaces publics paysagers
d1_panneaux-a0_vue2

Rénovation de la salle Bouteiller

Chantilly (95)
Placette et venelle publiques
vue-cours_1_light

Groupe Scolaire ZAC Mantes-Université

Mantes-La-Ville (78)
Cours oasis au sein d'une topographie reconstituée
Surface projet
0.02 hectares
Réemploi

Le jardin du dernier acte

Chaumont-Sur-Loire (37)
Jardins des siècles à venir

2250, les villes se sont développées de façon exponentielle se densifiant au détriment des espaces libres de respiration et voyant se raréfier tout type de végétalisation.

Dans cette société hyper-urbaine, les espaces végétalisés, rares et éloignés, sont devenus des produits de consommation de luxe. Pour en profiter les citadins peuvent se rendre, comme on irait au cinéma, dans des «théâtres naturels» pour contempler le temps d’une séance des mises en scène de paysage quasi-disparus (une jungle, un désert, un jardin anglais...).

La salle 16, le Jardin du dernier acte, propose une immersion dans un jardin-forêt. Nous vous invitons à vous asseoir confortablement dans les fauteuils à disposition, à vous relaxer et à observer le spectacle magique de la nature. Bonne séance !

Maîtrise d’ouvrage
Festival international des jardins de Chaumont-sur-Loire

Maîtrise d’œuvre
Hugo Deloncle + Anna Maes + Ji Sung An + Aude Bougeard

Missions
Conception / Réalisation

Date
2016

Montant de travaux
12 000 € HT

plan-coupe
chamont-1
chamont-7
dscf9651
chamont-8
dscf9653
dscf9731