Bio-diversifier
pdf-cmjn-illustrations-ajap-acme-paul-valery-v5

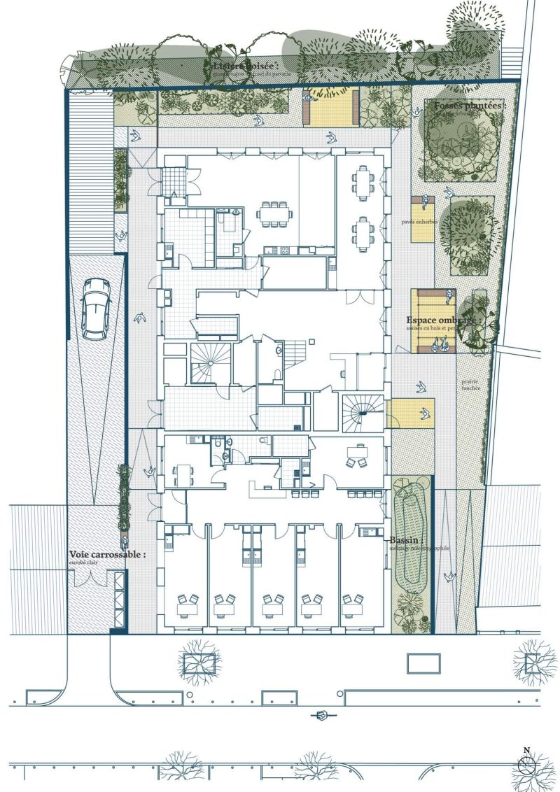
Cité Mixte Régionale Paul Valéry

Paris 12e (75)
Un paysage support d'usages scolaires et publics en milieu urbain dense
1.0

Campus Sciences Po Paris

Paris 07e (75)
Réhabilitation d'un patrimoine historique
plantes_29
image2

Groupe Scolaire Henri Dunant

Rouen (76)
Cours d'écoles à l'orée des bois
cachan-estp-com-231206

Campus ESTP Cachan

Cachan (94)
Apprentissage, Rencontre, Paysage
64_pegasus_oral_presentation_page_04

Musée Mémorial Pegasus

Ranville (14)
Jardin muséographique
rms_cour_vue2ter

Complexe Sportif Urbain de Courcelles

Reims (51)
Un parc actif et pluriel
c.-cahier-a3-plateau-sportif_vue

Plaine des sports, Gymnase et Maison de quartier

Longjumeau (91)
Un jardin sportif urbain
ajap-plan

Gymnase du village des médias

Dugny (93)
Equipement culturel et jardin d'agrément
mont_cosec_pro_pays_240614-plan-masse-a0

COSEC Pablo Picasso

Montesson (78)
Un parvis-jardin sportif et évènementiel
pdf-cmjn-illustrations-ajap-acme-stains-v6

Lot 28S _ Zac des Tartres

Stains (93)
Milieux, écotones, habitats
plantes_29
plan-masse_light

Collège Jean Jaurès

Montfermeil (93)
Extension - Réhabilitation d'un patrimoine moderne
athis-mons-com-231220

Canopée urbaine

Athis-mons (91)
Paysage des échanges
auber-landy-com-231220

Port Landy

Aubervilliers (93)
Un coeur d'ilot accessible au sein d'une topographie existante contrainte
a3_carnet_axo_light

Groupe Scolaire du Bois Bohy

Evreux (27)
Réhabilitation en lisière forestière
cop_projet-paysager-a3_pers-light

École Primaire et place de village

Saint-Martin-Sur-Ouanne (89)
Un parvis-jardin entre la mairie, la rue et l’école.
Plantes en format carré_Illus
galia_pantin_meteore_phase4-2-hd-01

Météore 4 chemins

Pantin (93)
Inventer la Métropole du Grand Paris 3 : Lauréat
carte-grande-echelle1

ZAC Coupvray

Coupvray (77)
Au sein d'un ilot urbain dense, déployer un paysage support d'usages scolaires et publics
plantes_29
20412-plan-masse_1_500-01-01

Les Messageries

Paris 12e (75)
Transitions paysagères
plan-coupe

Le jardin du dernier acte

Chaumont-Sur-Loire (37)
Jardins des siècles à venir
qsdqsdqsd

Zzzz

Paris (75)
Aménagement éphémère sur les bords de Seine
plan-masse_light

Groupe Scolaire Intercommunal Clichy / Saint-Ouen

Clichy-La-Garenne (93)
Un GS addosé à un parc urbain
plantes_29
plume-com-horinzontal-231109

Impasse Passoir

Clichy (92)
Jardins, sous-bois et vie quotidienne
acme_jour_aps_221102-plan-masse-01

Boulevard Jourdan

Paris 14e (75)
Jardin belvédère et terrasse nourricière
03-plan-paysager

Gymnase Franconville

Franconville (95)
Gymnase et espaces publics paysagers
d1_panneaux-a0_vue2

Rénovation de la salle Bouteiller

Chantilly (95)
Placette et venelle publiques
vue-cours_1_light

Groupe Scolaire ZAC Mantes-Université

Mantes-La-Ville (78)
Cours oasis au sein d'une topographie reconstituée
brest_plan-masse_pays_a1_200e_light2

Îlot Pradou_ZAC Fontaine Margot

Brest (29)
Logements et prairies habitées
plan-masse_light

Lot C2 _ Zac de l'Horloge

Romainville (93)
Jardin résidentiel
Habiter
pdf-cmjn-illustrations-ajap-acme-stains-v6

Lot 28S _ Zac des Tartres

Stains (93)
Milieux, écotones, habitats
grande-echelle-01

Terrain Prevot

Mont-joly, Guyane (97)
Habiter la forêt
athis-mons-com-231220

Canopée urbaine

Athis-mons (91)
Paysage des échanges
auber-landy-com-231220

Port Landy

Aubervilliers (93)
Un coeur d'ilot accessible au sein d'une topographie existante contrainte
carte-grande-echelle1

ZAC Coupvray

Coupvray (77)
Au sein d'un ilot urbain dense, déployer un paysage support d'usages scolaires et publics
plantes_29
20412-plan-masse_1_500-01-01

Les Messageries

Paris 12e (75)
Transitions paysagères
linkcity-x-acme-note-chemin-de-la-montagne-5

Chemin de la montagne

La-Queue-en-Brie (94)
Le vivant en préalable
plantes_29
plume-com-horinzontal-231109

Impasse Passoir

Clichy (92)
Jardins, sous-bois et vie quotidienne
acme_jour_aps_221102-plan-masse-01

Boulevard Jourdan

Paris 14e (75)
Jardin belvédère et terrasse nourricière
brest_plan-masse_pays_a1_200e_light2

Îlot Pradou_ZAC Fontaine Margot

Brest (29)
Logements et prairies habitées
plan-masse_light

Lot C2 _ Zac de l'Horloge

Romainville (93)
Jardin résidentiel
Surface projet
0.2 hectares
Surface plantée
0.1 hectares
Arbres plantés
3 arbres
Désimperméabilisation
0.1 hectares

Projet Sakura (immeuble Paul Bert)

Issy-les-Moulineaux (92)
Jardin de poche pour programme mixte

Le projet prévoit la construction de 24 logements, d’une maison médicale et d’une maison de répit. Ces 3 programmes s’articulent autour d’une entrée paysagère permettant l’accroche à la rue, la desserte des espaces mais également l’appropriation pour les occupants de la maison de répit des extérieurs.

Le paysage a ainsi été pensé comme un jardin bocager de poche, présentant des carrés de prairies fleuries, quelques arbres fruitiers et du mobilier sur mesure permettant aux résidents de s’y installer aux beaux jours à l’ombre des pergolas sur mesure.

Maîtrise d’ouvrage :

SOPH (Seine Ouest Patrimoine Habitat)

Maître d’œuvre :

Agence SOA (architecte mandataire) + Acmé Paysage (paysage)

Réalisation des phases :

MOE paysage : Du PRO à la réception (sous-traitant)

Date :

En chantier

Montant de travaux paysage et VRD :

330 000 € HT

issy-com-231220
ilm-entree-emma
ilm-verger-emma
image