Réconcilier
parcours

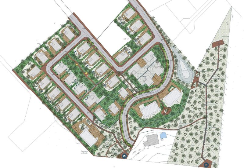
Le Fort des Saumonards

Saint-Georges-d'Oléron (17)
Destination culturelle et milieux naturels
grande-echelle-2-01

Valoriser le patrimoine d'un enclos-village

Rauville-La-Place (50)
Acupuncture paysagère dans un village rural
map-reprise

La renaturation de la Brague

Biot (06)
Reméandrer le lit d’un fleuve torrentiel pour prévenir les risques d’inondation
qsqsqsqs

Z.A. des Eaux Blanches

Sète (34)
Etude paysagère pour l’entrée de ville de Sète
linkcity-x-acme-note-chemin-de-la-montagne-5

Chemin de la montagne

La-Queue-en-Brie (94)
Le vivant en préalable
07.3_esquisse-d-intention_panneau-a0_vue

Site Gallo-Romain de Sanxay

Sanxay (86)
Séquence d'accueil et micro-interventions paysagères
brest_plan-masse_pays_a1_200e_light2

Îlot Pradou_ZAC Fontaine Margot

Brest (29)
Logements et prairies habitées
Habiter
pdf-cmjn-illustrations-ajap-acme-stains-v6

Lot 28S _ Zac des Tartres

Stains (93)
Milieux, écotones, habitats
athis-mons-com-231220

Canopée urbaine

Athis-mons (91)
Paysage des échanges
auber-landy-com-231220

Port Landy

Aubervilliers (93)
Un coeur d'ilot accessible au sein d'une topographie existante contrainte
issy-com-231220

Projet Sakura (immeuble Paul Bert)

Issy-les-Moulineaux (92)
Jardin de poche pour programme mixte
carte-grande-echelle1

ZAC Coupvray

Coupvray (77)
Au sein d'un ilot urbain dense, déployer un paysage support d'usages scolaires et publics
plantes_29
20412-plan-masse_1_500-01-01

Les Messageries

Paris 12e (75)
Transitions paysagères
linkcity-x-acme-note-chemin-de-la-montagne-5

Chemin de la montagne

La-Queue-en-Brie (94)
Le vivant en préalable
plantes_29
plume-com-horinzontal-231109

Impasse Passoir

Clichy (92)
Jardins, sous-bois et vie quotidienne
acme_jour_aps_221102-plan-masse-01

Boulevard Jourdan

Paris 14e (75)
Jardin belvédère et terrasse nourricière
brest_plan-masse_pays_a1_200e_light2

Îlot Pradou_ZAC Fontaine Margot

Brest (29)
Logements et prairies habitées
plan-masse_light

Lot C2 _ Zac de l'Horloge

Romainville (93)
Jardin résidentiel
Partager
pdf-cmjn-illustrations-ajap-acme-paul-valery-v5

Cité Mixte Régionale Paul Valéry

Paris 12e (75)
Un paysage support d'usages scolaires et publics en milieu urbain dense
cachan-estp-com-231206

Campus ESTP Cachan

Cachan (94)
Apprentissage, Rencontre, Paysage
rms_cour_vue2ter

Complexe Sportif Urbain de Courcelles

Reims (51)
Un parc actif et pluriel
c.-cahier-a3-plateau-sportif_vue

Plaine des sports, Gymnase et Maison de quartier

Longjumeau (91)
Un jardin sportif urbain
ajap-plan

Gymnase du village des médias

Dugny (93)
Equipement culturel et jardin d'agrément
grande-echelle-2-01

Valoriser le patrimoine d'un enclos-village

Rauville-La-Place (50)
Acupuncture paysagère dans un village rural
map-reprise

La renaturation de la Brague

Biot (06)
Reméandrer le lit d’un fleuve torrentiel pour prévenir les risques d’inondation
qsqsqsqs

Z.A. des Eaux Blanches

Sète (34)
Etude paysagère pour l’entrée de ville de Sète
cop_projet-paysager-a3_pers-light

École Primaire et place de village

Saint-Martin-Sur-Ouanne (89)
Un parvis-jardin entre la mairie, la rue et l’école.
linkcity-x-acme-note-chemin-de-la-montagne-5

Chemin de la montagne

La-Queue-en-Brie (94)
Le vivant en préalable
qsdqsdqsd

Zzzz

Paris (75)
Aménagement éphémère sur les bords de Seine
plantes_29
plume-com-horinzontal-231109

Impasse Passoir

Clichy (92)
Jardins, sous-bois et vie quotidienne
d1_panneaux-a0_vue2

Rénovation de la salle Bouteiller

Chantilly (95)
Placette et venelle publiques

Terrain Prevot

Mont-joly, Guyane (97)
Habiter la forêt

Le projet propose une expérience piétonne de ce fragment de territoire guyanais dense et humide par la mise en oeuvre d’un cheminement piéton pensé comme un prolongement du réseau existant, menant aux habitations et aux différents lieux de rencontre proposés par le projet paysager (placette avec des assises en bois, alliée à des surfaces plantées de strates basses et sujets arborés apportant de l’ombre).

Ces cheminements de quartier sont prolongés par des sentiers serpentant la topographie, à travers la végétation, permettant d’apprécier par des séquences d’emmanchement les points de vue sur le grand paysage. Une promenade en boucle est créée, traversant des observatoires, des poches de respiration et de repos et un promontoire sur le bassin paysager de rétention des eaux.

Une gestion des eaux créant des situations paysagères agréables, alliée à une mise en oeuvre en infrastructure

Maîtrise d’ouvrage :

Antiope Immobilier et BSVL

Maître d’œuvre :

LAMT (Architecte), ACME Paysage (Paysagistes) 

Réalisation des phases :

MOE partielle (ESQ > PRO)

Date :

En cours

Montant de travaux paysage et VRD :

nc

grande-echelle-01

Cartographie territoriale

2
1
3

Coupes : s'inscrire dans les pentes

4

Plan masse paysager

exterieur_02_v3-scaled

Vue de la sente pietonne

exterieur_03_v1-scaled

Vue du bassin de récupération des eaux pluviales